




























Budapest, 5. kerület, Belgrád rakpart
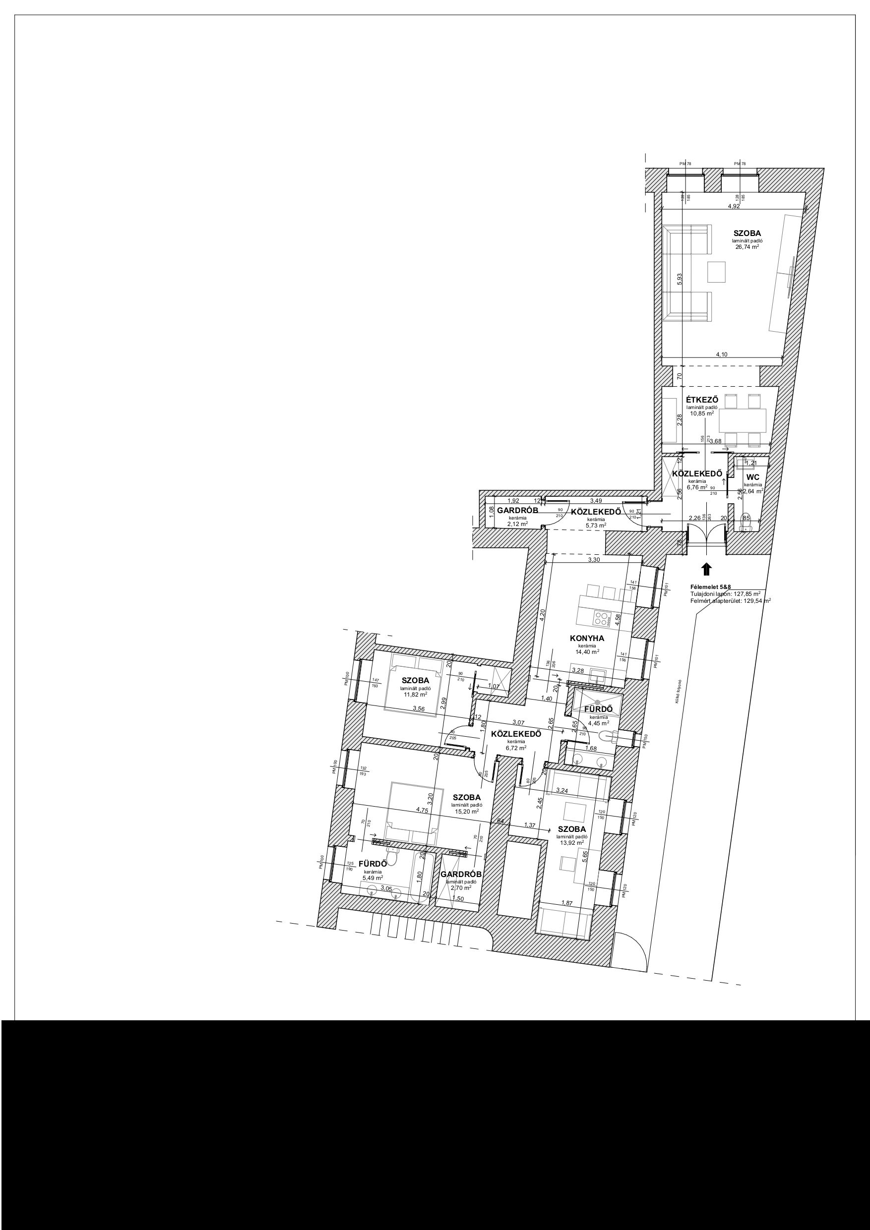
Eladó az 5. kerületben, a Belgrád rakparton egy 128 m²-es, duplakomfortos, felújított lakás. A lakás bútorozott, klimatizált, és egy négyszintes, liftes társasház magasföldszintjén helyezkedik el. Beosztása: nappali étkezővel, három hálószoba, két fürdőszoba WC-vel, egy különálló WC, külön konyha, előszoba, két gardrób és egy háztartási helyiség.
A nappali nyugati tájolású, panorámás kilátással a Dunára és a Szabadság-szoborra. A fűtést gáz kombi cirkó biztosítja HMV tárolóval, a közös költség 40.525 forint havonta, amely a víz- és csatornadíjat is tartalmazza.
A közlekedés kiváló, a környéken két villamos, valamint a 47-es és 49-es villamos megállója néhány perc sétára található. A társasház rendezett, a közös képviselő maga is a házban lakik, így a karbantartás és a rend folyamatosan biztosított. A ház csendes és kellemes hangulatú, biztonsági kamerarendszerrel felszerelt, amely az aulát, lépcsőházat, udvari parkolót, fedett biciklitárolót és a liftet is figyeli.
Parkolásra az udvarban van lehetőség havi 40.000 forintért, közvetlen kijárattal a Belgrád rakpartra, ez az egyetlen ház a rakparton, ahol közvetlen autóbeállás biztosított. A biciklitároló ingyenesen használható. A környéken jónevű iskolák és egyetemek találhatók, valamint számos étterem és kávézó. A Központi Vásárcsarnok, benne az Aldi, mindössze öt perc sétára van, így a mindennapi bevásárlás autó használata nélkül is könnyedén megoldható.
A teljes Belgrád rakpart megújulás előtt áll, ami hosszú távon kiemelt befektetési lehetőséget jelent a város szívében, luxus környezetben. A közeli Havas utcát 2024-ben újították fel, beültetett fákkal és utcabútorokkal, így a környék esztétikus és rendezett.
--------------------------------
A 128 m², double-comfort renovated apartment is for sale in District V, on Belgrád rakpart. The apartment is furnished, air-conditioned, and located on the mezzanine of a four-story building with an elevator. The layout includes a living room with dining area, three bedrooms, two bathrooms with toilets, a separate WC, a separate kitchen, an entrance hall, two walk-in closets, and a utility room.
The living room faces west and offers panoramic views of the Danube and the Liberty Statue. Heating is provided by a gas combi boiler with hot water storage, and the monthly maintenance fee is HUF 40,525, which includes water and sewage charges.
The location offers excellent public transport connections, with two tram lines nearby, as well as the 47 and 49 trams within a few minutes’ walk. The building is well-maintained, and the property manager lives on-site, ensuring that maintenance and order are consistently taken care of. The building is quiet and pleasant, equipped with a security camera system covering the lobby, stairwell, courtyard parking, covered bicycle storage, and the elevator.
Parking is available in the courtyard for HUF 40,000 per month, with direct access to Belgrád rakpart. This is the only building on the quay with direct car access. Bicycle storage is available free of charge. The area is close to well-known schools and universities, as well as numerous restaurants and cafés. The Central Market Hall, including an Aldi, is only a five-minute walk, making daily shopping easy without using a car.
Belgrád rakpart is set for full redevelopment, offering excellent long-term investment potential in the heart of the city, in a prestigious environment. Nearby Havas Street was renovated in 2024 with planted trees and street furniture, enhancing the aesthetics and overall atmosphere of the neighborhood.

