

























Budapest, dist. 1, Markovits Iván utca
Description:
br>
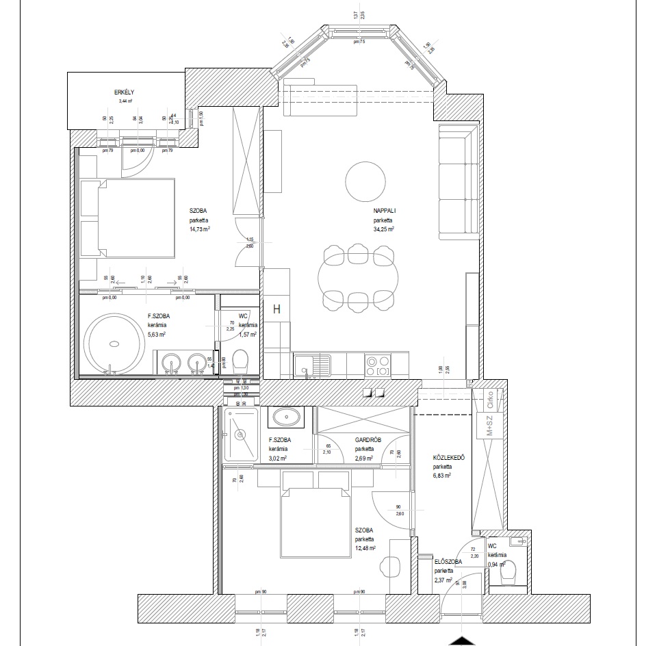
This apartment designed and built by an interior designer is for sale in one of the most popular parts of the 1st district of Buda, surrounded by great cafes and restaurants on Markovits Iván Street, a few steps from the Danube, in a well-equipped building.
The spacious space of the 87 sqm apartment includes two bedrooms, two bathrooms, and a living room with an American kitchen, spiced up with creative ideas. Cooling is provided by A/C in every room, and a combi boiler provides underfloor heating and hot water. The windows are new pine windows.
The fully furnished property also features electric shutters, a bio ethanol fireplace, Bosch kitchen appliances, oak parquet, custom-made furniture, and insulated wooden windows. The price includes furniture and decoration.
Common cost: HUF 28,010/month
The condominium is constantly being developed and is winning tender funds. The residential community is pleasant.

